Vår idé är att bygga arkitektritade hus som skräddarsys efter det liv du vill leva i ditt nya hem. Du berättar om huset du drömmer om så hittar vi de bästa lösningarna som passar dina behov och din budget.
Drömmen om ett arkitektritat hus
Ofta börjar drömmen om ett nytt hus när det nuvarande huset inte längre räcker till, när familjesituationen har förändrats eller när planlösningen helt enkelt behöver bli mer funktionell. Pandemin har påverkat vårt sätt att leva och att arbeta hemifrån har blivit det nya normala, vilket också ställer nya krav och önskemål på vårt boende. AChoice erbjuder alltid arkitektritade hus. Den stora fördelen är att alla våra arkitekter har SAR/MSA bakgrund eller motsvarande, med kvalifikationer att se funktionella, byggbara och kanske nya smarta lösningar som du behöver men inte har tänkt på. Det gäller att utnyttja varje kvadratmeter. Självklart anpassas ditt arkitektritade hus till tomtens förutsättningar och den omgivande miljön.
Hur går det till med arkitektritade hus?
Du har kanske en bild av hur ditt hus ska se ut, vet vilka funktioner ditt nya hus ska ha eller så har du rent av redan har börjat skissa på din nya planlösning. Innan du träffar vår arkitekt är det bra om du har en fastställd budget och är förberedd. Skriv ner alla dina önskemål. Du kan vara väldigt specifik men också drömma dig bort. Ta upp allt som förenklar din vardag och stora drömmar. Vi lyssnar och konkretiserar dina idéer i en funktionell planlösning. För att få ut det mesta av ditt arkitektmöte bör du ha en tomtkarta och detaljplan som beskriver vad som får lov att byggas på tomten.
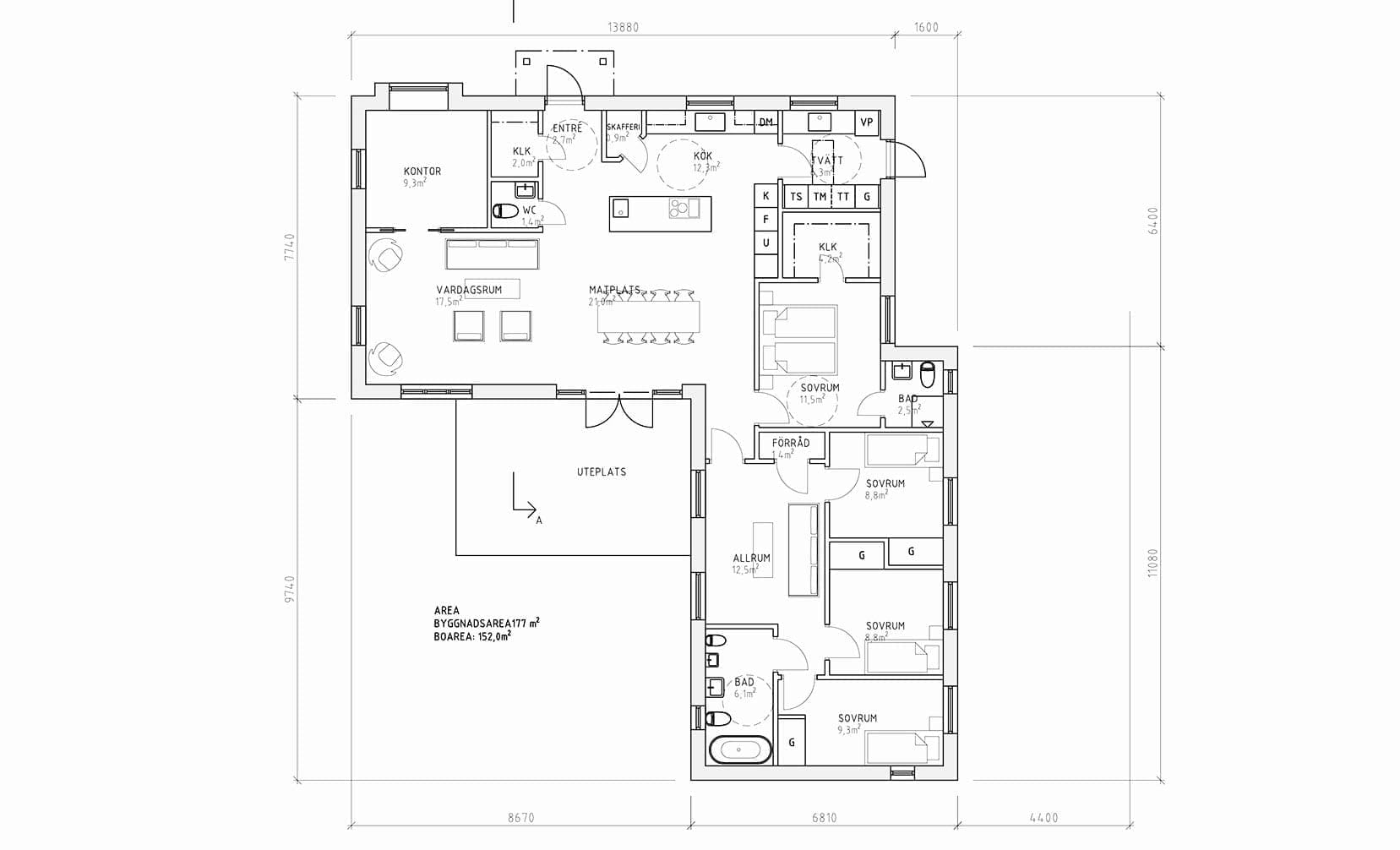
Ett av Bodil och Lars önskemål var att i den öppna planlösningen mellan vardagsrum och kök kunna dölja disken. Lösningen blev en upphöjd marmorskiva på köksön.
Att tänka på inför arkitektmötet
- Börja med att definiera en budget för ditt husprojekt
- Skriv ner en lista med alla önskemål, stort som smått
- Tänk över saker som irriterar dig i din vardag
- Fundera på viktiga funktioner i respektive rum
- Har du en hobby som kräver specifik plats?
- Behöver du extra förvaring?
- Älskar du att laga mat och behöver mycket arbetsyta?
- Arbetar du hemifrån och behöver en avskild plats?
- Ta med bilder på hus du inspireras av
- Glöm inte att fundera över hur du vill leva på tomten
- Vilka ytskikt och material?
- Testa att rita huset i Planlösaren, vårt digitala ritbord
- Har du en färdig arkitektritning så utvärderar vi om det går att bygga i vårt system
Arkitektens råd
- Tänk över hur ditt liv ser ut idag och på lång sikt
- Välj högkvalitativa material som håller länge
- Planerar du för tillökning, huset kan förberedas för framtiden
- Tänk igenom dina behov noga och sätt dem i prioriteringsordning. Då är det enklare att välja bort det som har minst prioritet i budgeten.
KUNDCASE 1
Familj 2 vuxna och 3 barn
Familjen hade förberett en lista med kriterier och även skissat på sitt hus i Planlösaren. Med sig till arkitektmötet hade de även inspirationsbilder på kök och badrum.
Här ser du exempel på planritning före och efter där arkitekten tagit fasta på familjens önskemål.
Utdrag ur önskelistan
- Stor social yta mellan vardagsrum och kök
- Vill ha enbart ett matbord med möjlighet att duka ett långbord
- Stor kombinerad tvättstuga med grovkök och egen entré
- Mycket plats för skor, ytterkläder och för tillbehör som används på fritiden
- Mycket förvaring och framförallt nära hallen
- Huvudentré ska riktas mot nordost för lite morgonsol
- Barnens badrum ska innehålla både badkar och dusch
- ….
KUNDCASE 2
Familj 2 vuxna och 2 barn
Familjen hade förberett en handritad skiss, en lista med önskemål och ett foto de tog med mobilen. Här får du en bild på processen från idé till färdigt hus.
Utdrag ur önskelistan
- Hus med potential för utbyggnad
- 1+2 sovrum – fler?
- Öppen planlösning mellan kök, matsal och vardagsrum
- Extra barnrum/lekrum
- Kontor, bibliotek
- Grovingång på hörnan
- Huvudingång i mitten
- Rak linje framåt så nära vägen som möjligt
- Helst L eller U hus
- 2 badrum och gästtoalett
- Minitoalett
- Avskild vuxen/barndel men helst nära
- Se genom huset vid entrén
- Helst bara en utgång till altan
- Gult hus med vita knutar och svart tak
- Klädkammare/förråd vid entrén för vagn
- Vind
- Kamin
- Möjlighet för långbord mot altan
- Köksö
- Köksskafferi
- Mysfönster
Läs också Hemma Hos Åsa och Viktor














